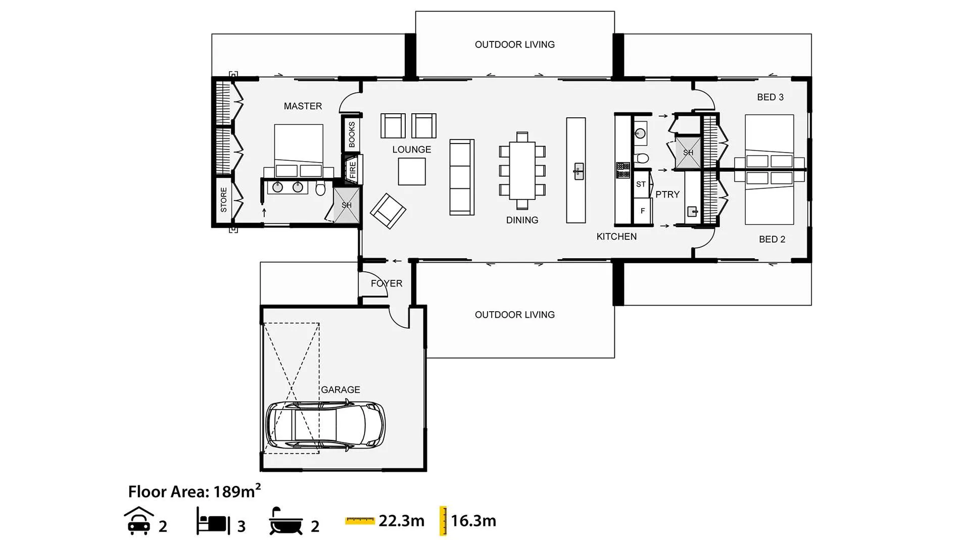
This home captures both modern and traditional architecture with its defined outlines bonding both into a strong, appealing home. The layout of this home is designed around simple lines, dual outdoor living and the general flow of modern living. The garage allows for a private and sheltered backyard and depending on the section, this home can be flipped, mirrored or rotated to suit.
.png)

.png)


