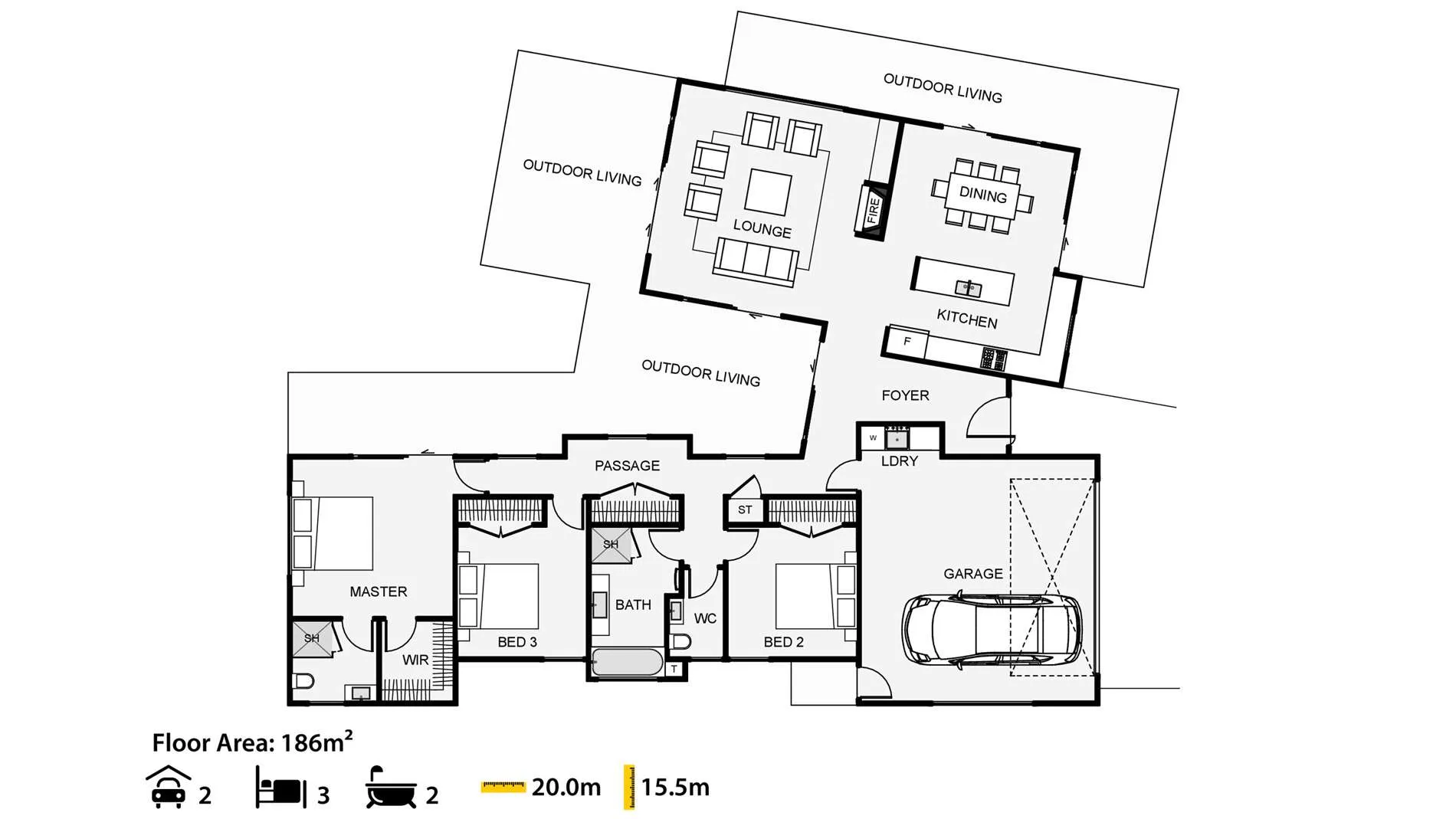
Two main wings provide the basic layout of this home. The bedroom wing is longer and provides the perfect shelter and privacy to the outdoor living and lawn space. By having the living wing set at an angle the kitchen and dining are positioned in the morning sun. The angle also gives a very sheltered outdoor living space between wings and a view angle from the lounge which reaches out into the property. This home could give your section the edge you're looking to create.
.png)

.png)


