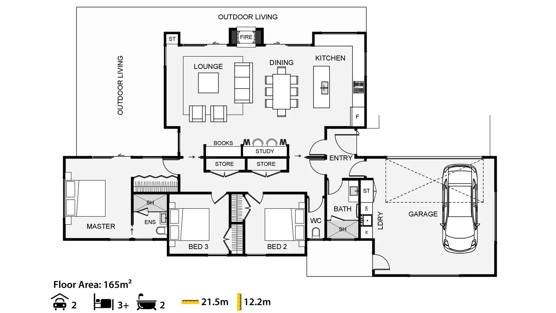
This design has a unique side profile with its gull-wing roof-line. This home is designed to accommodate families with its extensive storage and integrated study. The open living has a high rafter ceiling with two overhead windows as pictured above. Families can enjoy the use of an outdoor fire as well the optional bar window in the kitchen, making entertaining at home fun and exciting for all.
.png)

.png)


