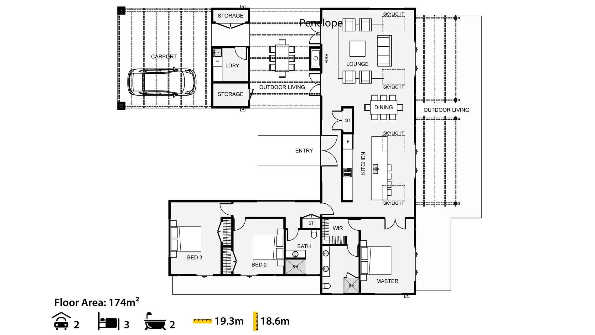
This is a modular home with a strong entry. All bedrooms and bathrooms are designed to pick up the morning sun while the outdoors and living areas are positioned to pick up sun throughout the day. The outdoor living between the garage and house is sheltered, has an outdoor fireplace and works great for evening entertaining. Both the carport and the nearby outdoor living areas can be closed in as rooms. With so much flexibility, this home is a great choice.
.png)

.png)


