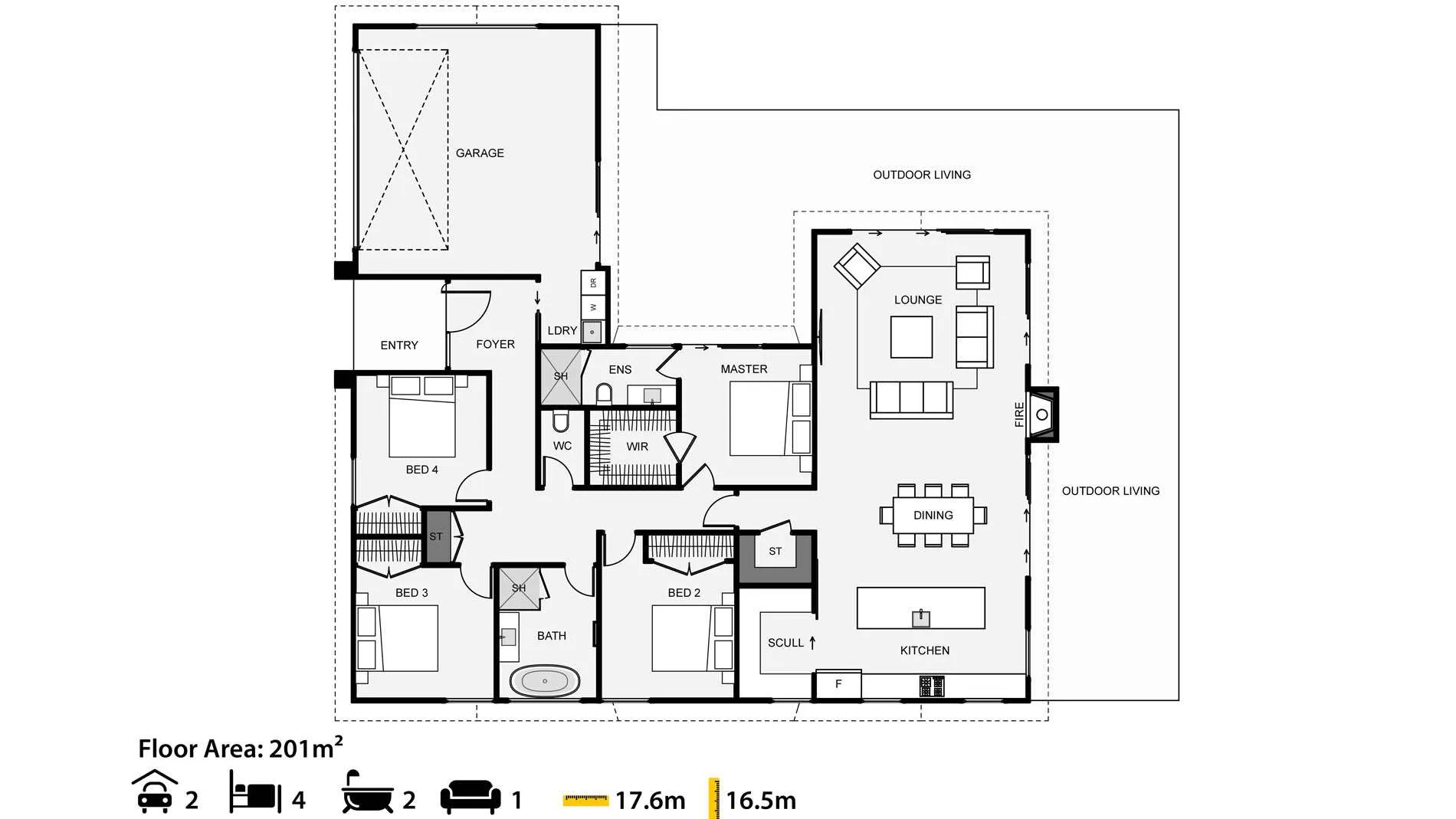
Designed to cover four bedrooms within a small footprint, this home comes with a lot of value. The garage smartly offsets the home to create a private outdoor space. The kitchen is a good size and includes a scullery. The main living wing has the option for a flat, scissor or sloped ceiling, which can make a big difference in interior feel. With this design, you can get a lot of family home within a smaller budget.
.png)

.png)


